↓ Skip to Main Content
Main Navigation
Menu
Urban Challenges
Finding Space
Making Connections
Leveraging Infrastructure
Recovering Heritage
Research + Leadership
Community Support
Competition Entries
Urban Studies
About
Awards
Press
Office for Responsive Environments
Contact
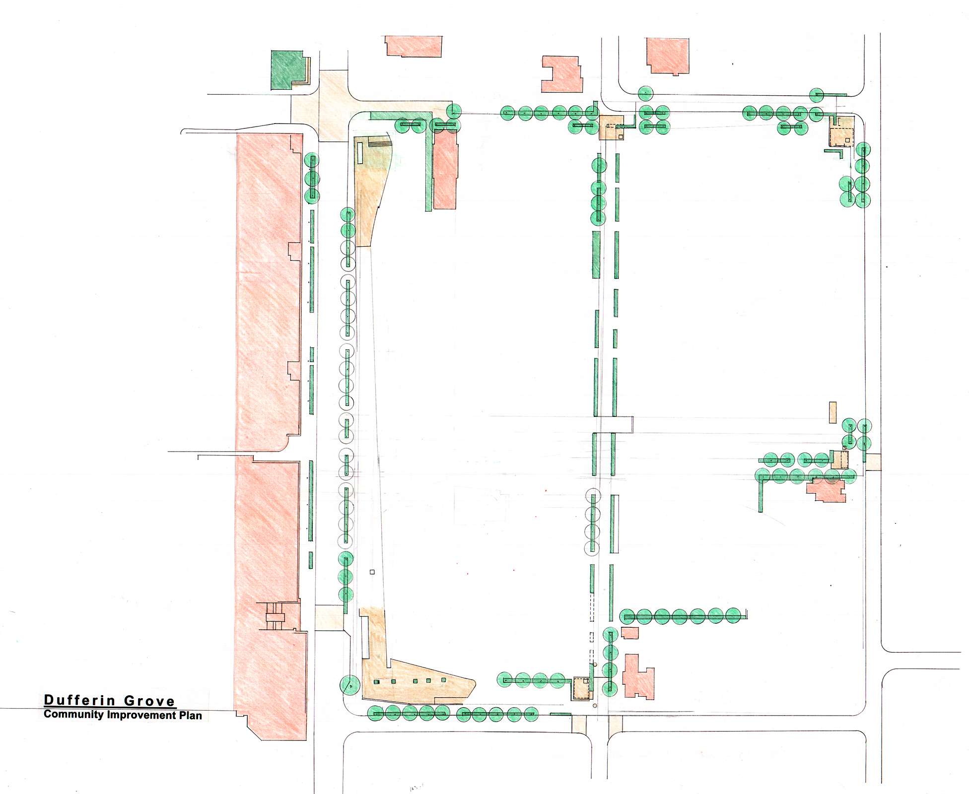
DUFGRO-4
‹ Return to
Dufferin Grove Community Project
Posted onBy
September 27, 2022
admin
Posted in
Top